Ferienwohnung – Das SonnenDECK

Ferienwohnung in der Region Norddeich & Umgebung


Kolkstraße 20, 26506 Norddeich
listing owner image
Typ
Ganze Unterkunft / Ferienwohnung
Maximale Belegung
3 Gäste
Schlafzimmer
2 Schlafzimmer
Bäder
1 Badezimmer

Kurzbeschreibung von Das SonnenDECK

Willkommen in der Ferienwohnung Das SonnenDECK! Diese Unterkunft liegt in der Region Norddeich & Umgebung auf dem Festland Ostfrieslands. Erleben Sie den besonderen Charme der Nordseeküste mit seinen urigen Fischerdörfern, Windmühlen und endlosen Deichwegen. Die Ferienwohnung bietet 2 Schlafzimmer und hat eine Wohnfläche von 55 Quadratmetern. Es gibt 1 Badezimmer und im Preis inkludiert sind 3 Gäste. Hunde sind nicht gestattet. Wir laden Sie herzlich ein, die erholsame Nordseeluft des Nationalparks Niedersächsisches Wattenmeer zu genießen und sich von der Ruhe Ostfrieslands einnehmen zu lassen. Wir würden uns freuen, wenn die Ferienwohnung "Das SonnenDECK" dabei die richtige Unterkunft für Sie ist. Buchen Sie diese Unterkunft jetzt zum günstigsten Preis auf Ostfriesland Domizile, oder stöbern Sie in unserer Suche nach weiteren Ferienwohnungen in der Region.

Über diese Ferienwohnung

Kurzbeschreibung:
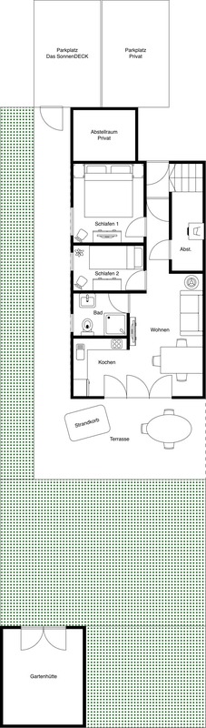
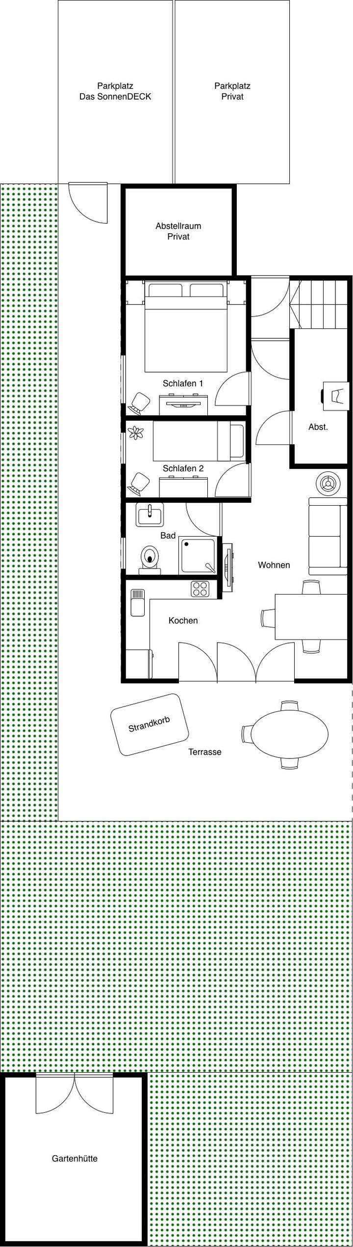
Hochwertig eingerichtete Erdgeschoss-Ferienwohnung (Baujahr 2012) mit großer Sonnenterrasse und eingezäuntem Garten in Top-Lage
DTV-klassifiziert mit 4

Lagebeschreibung:
Die Unterkunft befindet sich in 26506 Norddeich (Kolkstraße)

Ausstattungen:
Die geschmackvolle Erdgeschoss-Ferienwohnung mit alleiniger Gartennutzung für max. 4 Personen befindet sich in ruhiger Sackgassen-Lage. Strand, Deich & Hafen, diverse Restaurants, Eisdielen, Bäckereien & Lebensmittelgeschäft, Erlebnisbad Ocean Wave & Kurpark sowie der Bahnhof, E-Auto-& Fahrradverleih sind fußläufig innerhalb weniger Minuten zu erreichen.

Die moderne Einbauküche ist mit vollwertiger Ausstattung und einer bequemen Sitzgelegenheiten aus Leder.

Im offenen und lichtdurchfluteten Ess-/Wohnbereich bietet die Essgruppe mit 4 Lederstühlen und Blick in den schönen Garten eine gemütliche Sitzgelegenheit, das bequeme Ledersofa sowie die dimmbare LED-Beleuchtung sorgen ebenfalls für Behaglichkeit.

Alle Räume können mit Außen-Rollläden elektrisch verdunkelt werden, Fliegengitter sind vorhanden. Die Ferienwohnung ist mit einer Fußbodenheizung ausgestattet. Die Internetnutzung steht Ihnen mittels WLAN zur Verfügung.

Im ersten Schlafzimmer befinden sich ein hochwertiges 1,80×2,00-m-Box-Springbett mit 2 Leselampen; Panasonic TV-Flachbildschirm 40“; Kommode mit 4 Schubladen; freistehende Kleiderstange mit Bügeln; Plissee; Außenrollladen; Fliegengitter, Fußbodenheizung; 1,35×2,00-m-Vierjahreszeiten-Bettdecken und 80x80cm-Kopfkissen aus Faser-Technologie

Bitte beachten: Diese Unterkunft ist nicht für Babys oder Kleinkinder ausgelegt. Ein Baby-Reisebett kann aus Platzgründen leider NICHT aufgestellt.

Im zweiten Zimmer befindet sich ein Hochwertiges 0,90×2,00-m-Box-Springbett; geschmackvolle Kommode; freistehende Kleiderstange mit Bügeln; Wandspiegel; Plissee; Außenrollladen; Fliegengitter; Fußbodenheizung; 1,35×2,00-m-Vierjahreszeiten-Bettdecke und 40x80cm-Kopfkissen aus Faser-Technologie

Das Tageslicht-Badezimmer ist mit einer ebenerdigen gefliesten Dusche 90×90 cm; beleuchteter Spiegelschrank; Waschbecken-Unterschrank; Handtuchheizkörper; Badhocker; Föhn; Außenrollladen; Fliegengitter; Fußbodenheizung

Die Terrasse ist mit einem hochwertigem Strandkorb; runden Gartentisch (115 cm Durchmesser); 3 Gartenstühlen mit Auflagen; 2 klappbare Gartenliegen und einem großen Sonnenschirm ausgestattet

Hinweise zum Garten:
– Alleinige Gartennutzung, Gartenhütte als Unterstellmöglichkeit mit Steckdose für E-Bikes
– Auf dem Grundstück ist nur die Nutzung eines E-Grills erlaubt. Ein E-Grill gehört NICHT
zur Ausstattung der Ferienwohnung, diesen bei Bedarf bitte selbst mitbringen.
– Die Gartenpflege (z. B. Rasenmähen) könnte auch werktags außerhalb eines
Gästewechsels am Vormittag oder Nachmittag erfolgen.

WEITERE DETAILS:

Küche:
Glas-/Cerankochfeld
Wasserkocher
Kühlschrank
Gefrierfach
Geschirrspülmaschine
Toaster
Kaffeemaschine
Mixer
Backofen
Waage
Senseo-Kaffeemaschine

Wohnbereich:
TV
DVD / BlueRay – Player
Couch
Esstisch mit vier Stühlen
Internet-Radio; dimmbare LED-Beleuchtung

Außenbereich:
Terrasse
Garten/Liegewiese
Gartenmöbel
umfriedetes Grundstück
Strandkorb am Objekt
Fahrradabstellraum
Außenabstellraum
Parkplatz kostenfrei

1. Schlafzimmer (2 Pers.):
1x Doppelbett
TV
Hochwertiges Box-Springbett mit 2 Leselampen; Panasonic TV-Flachbildschirm 40“; Kommode ; freistehende Kleiderstange mit Bügeln; Plissee

2. Schlafzimmer (1 Pers.):
1x Einzelbett
Hochwertiges Box-Springbett; geschmackvolle Kommode; freistehende Kleiderstange mit Bügeln; Wandspiegel; Plissee

1. Badezimmer:
Dusche
WC
Waschbecken
Föhn
beleuchteter Spiegelschrank; Handtuchheizkörper; Badhocker

Sonstiges:
Rauchmelder
Waschmaschine

max. 1 Hund

Außenbereich:
Außenbereich:
Terrasse
Garten/Liegewiese
Gartenmöbel
umfriedetes Grundstück
Strandkorb am Objekt
Fahrradabstellraum
Außenabstellraum
Parkplatz kostenfrei

Allgemeine Informationen:
Anreise ab 15:00 Uhr
Abreise bis 10:00 Uhr
Zusatzleistungen (Bettwäsche, Handtücher usw.) i.d.R. optional und gebührenpflichtig buchbar.

Zusätzliche Preisinfos:
Bettwäsche und Handtücher können gegen Gebühr geliehen werden.
Die Kurtaxe wird gesondert berechnet.
Zusatzleistungen (Bettwäsche, Handtücher usw.) i.d.R. optional und gebührenpflichtig buchbar.

Nach der Buchung stehen Ihnen zusätzlich die Zahlungsmöglichkeiten Banküberweisung, Kreditkarte, Sofortüberweisung und Google/Apple Pay zur Verfügung. Weitere Informationen entnehmen Sie bitte Ihrer Buchungsbestätigung.

Details

  • Objekt Nr.:
    88222
  • Größe:
    55
  • Schlafzimmer:
    2
  • Bäder:
    1
  • Check-in nach:
    Zwischen 15:00 Uhr und 20:00 Uhr
  • Check-out vor:
    Zwischen 00:00 Uhr und 10:00 Uhr

Weitere Informationen

  • Max. Belegung:
    3
  • Zusätzliche Gäste:
    Nein

Belegung

April 2026
  • M
  • D
  • M
  • D
  • F
  • S
  • S
  • 1
  • 2
  • 3
  • 4
  • 5
  • 6
  • 7
  • 8
  • 9
  • 10
  • 11
  • 12
  • 13
  • 14
  • 15
  • 16
  • 17
  • 18
  • 19
  • 20
  • 21
  • 22
  • 23
  • 24
  • 25
  • 26
  • 27
  • 28
  • 29
  • 30
Mai 2026
  • M
  • D
  • M
  • D
  • F
  • S
  • S
  • 1
  • 2
  • 3
  • 4
  • 5
  • 6
  • 7
  • 8
  • 9
  • 10
  • 11
  • 12
  • 13
  • 14
  • 15
  • 16
  • 17
  • 18
  • 19
  • 20
  • 21
  • 22
  • 23
  • 24
  • 25
  • 26
  • 27
  • 28
  • 29
  • 30
  • 31
  • Frei
  • in Anfrage
  • Gebucht
<
logo Secra

Angeboten von Secra

  • Vermittlungsagentur
Sprachen
deutsch, englisch
Profilstatus
Verifiziert

Hausordnung & Regeln

Hier klicken

Ähnliche Unterkünfte

Fledderweg 25 c, 26506 Norddeich
  • 1 Schlafzimmer
  • 1 Badezimmer
  • 3 Gäste
Norddeicher Straße 238, 26506 Norddeich
  • 2 Schlafzimmer
  • 1 Badezimmer
  • 2 Gäste
Muschelweg 10, 26506 Norddeich
  • 1 Schlafzimmer
  • 1 Badezimmer
  • 3 Gäste
Norddeicher Straße 255A, 26506 Norddeich
  • 2 Schlafzimmer
  • 1 Badezimmer
  • 3 Gäste
Norddeicher Str. 239, 26506 Norddeich
  • 2 Schlafzimmer
  • 1 Badezimmer
  • 4 Gäste
Buchungsdetails
Alle Funktionen im Überblick

Hier eine Übersicht über alle Funktionen, die wir bei Ostfriesland Domizile anbieten.

Anzeigen hinzufügen
Buchungskalender
Preisgestaltung
Zahlungsabwicklung
Dashboard
Service der Plattform